Eladó Családi ház Budapest III. kerület
Budapest III. kerület, Csillaghegy, Attila utca
218.000.000 Ft
(573.790 €)
Az ingatlan részletei
- Ajánlat: Eladó
- Tipus: Családi ház
- Ár: 218.000.000 Ft
- Alapterület: 105 m2
- Telek mérete: 380 m2
- Emelet: Földszint
- Szobák: 3 szoba, 2 félszoba
- Épület szintjei: 2 szintes
- Erkély: van, 25 m2
- Kertkapcsolat: igen
- Kilátás: Kertre néző
- Állapot: Újszerű
- Fűtés: Hőszivattyú
- Komfort: Dupla komfort
- Parkolás: Telken beálló
Leírás
Azonosító: E-III-3-244
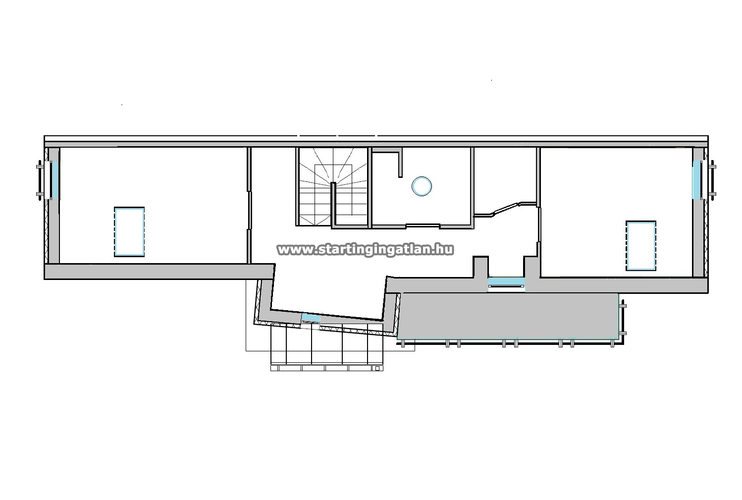
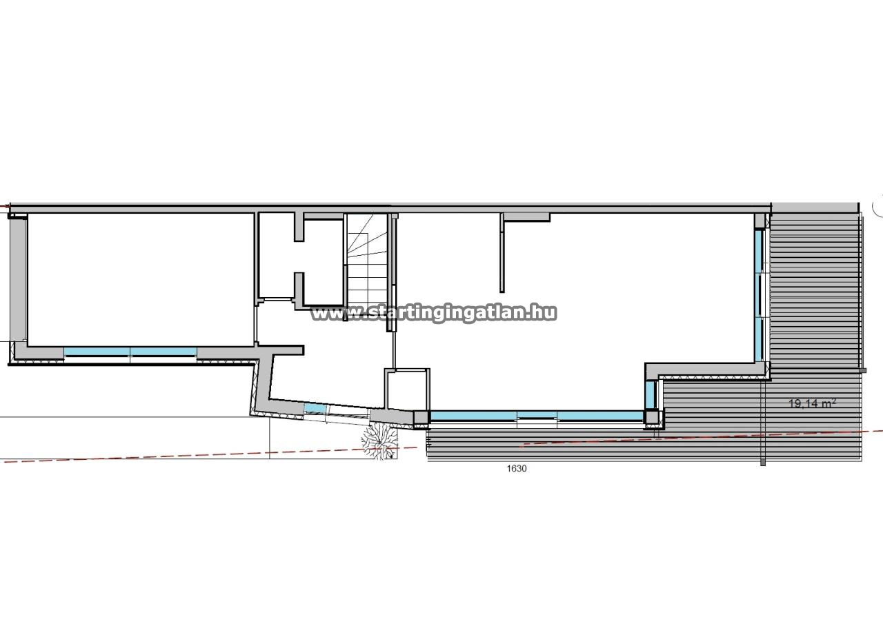
Eladó 3. kerület, Csillaghegy kedvelt, Duna felőli részén, a Római-part közelében, az Attila utcában, egy 2017-ben épült, 120 m²-es, nappali + 2 szoba + 2 félszobás, modern ikerházfél, saját, parkosított kerttel. Az ingatlan kiváló elosztású és rendkívül világos: a földszinten nagy, amerikai konyhás nappali és étkező található (34 m²), amely több mint 15 m²-nyi üvegfelületének és délkeleti tájolásának köszönhetően egész nap napfényes, ráadásul két irányból is kijárat nyílik a 19 m²-es fedett teraszra és a gondozott kertbe.
A gépesített konyha mellett külön kamra biztosítja a kényelmes tárolást. Ugyanezen a szinten helyezkedik el két 7 m²-es félszoba, amelyek igény szerint egybenyithatók vagy akár garázzsá alakíthatók, továbbá egy zuhanyzós fürdőszoba WC-vel. Az emeleten két tágas hálószoba (14,5 m² és 13,5 m²), egy külön gardróbszoba, egy kádas-duplamosdós fürdő, előtér és egy 6,8 m²-es terasz szolgálja a mindennapi kényelmet; a szobák franciaerkélyes teraszajtóval és tetőablakokkal kimagaslóan világosak.
A házban négy nagy beépített szekrény is rendelkezésre áll. Az épület 30 cm-es Porotherm téglából készült 10 cm grafitos szigeteléssel, Bramac tetőcseréppel, 4 rétegű argon gázas nyílászárókkal, biztonsági bejárati ajtóval, videó kaputelefonnal és riasztórendszerrel. A nappali-étkező ablakain alumínium zsaluzia, az emeleten redőnyök, minden nyílászárón szúnyogháló került felszerelésre. A fűtés-hűtést és a melegvízellátást H-tarifára kötött Toshiba hőszivattyú biztosítja 300 literes HMV tartállyal, padlófűtés és fali/mennyezeti hűtő-fűtő panelek segítségével, a helyiségek hőmérséklete helyiségenként és akár távolról is szabályozható.
A rezsiköltséget jelentősen csökkenti a tetőre telepített 9 kW-os napelemrendszer, amely még 7 évig szaldós elszámolásban működik. A 287 m²-es, saját használatú, teljesen szeparált kertben szerszámosház, játszó/hinta, automata öntözőrendszer és automata kapu található, a 180 m²-es füves terület mellett a térkövezett beálló két autó számára kényelmes parkolást biztosít. A tulajdoni lap szerint lakás besorolású.
A ház Csillaghegy csendes, zöld, családi házas övezetében helyezkedik el, a Rómaipart, a HÉV-megálló, a bevásárlási lehetőségek (Csillag Center, Lidl, Aldi, piac), óvoda, iskola, strand, buszmegállók és orvosi szolgáltatások mind gyalogosan is elérhetők. A környék kiválóan alkalmas kisgyermekes családoknak és mindenkinek, aki nyugodt kertvárosi környezetre vágyik, ugyanakkor szeretné könnyen megközelíteni az Árpád hidat vagy a Batthyány teret. A család kinőtte szeretett otthonát, így az ingatlan új, gondos tulajdonosát keresi.
Azon kedves ügyfelek, akik általunk találják meg leendő otthonukat, az ügyvédünk által szerkesztett adásvételi szerződés díjából kedvezményben részesülnek.
Eladná ingatlanát? Bízza ránk!
Nálunk az értékesítés átlátható, egyszerű és biztonságos folyamat. A vételt és az eladást egy kézben tartjuk - így Önnek csak a sikeres üzletet kell ünnepelnie.
Hívjon minket még ma, és ingyenesen felmérjük ingatlana piaci értékét!
Miért válasszon minket?
- - Gyors értékesítés
- - Széles vevőkör
- - Tapasztalt értékesítők
- - Modern, kiemelt online megjelenés
- - Rugalmas jutalék
- - Teljes körű ügyintézés az első lépéstől a birtokbaadásig
Hívjon most, vagy Írjon üzenetet még ma, és indítsuk el az értékesítést! Hívjon most, vagy Írjon üzenetet még ma, és indítsuk el az értékesítést! Mobil: +36-20-852-8402
További ajánlataim: startingingatlan.hu/ertekesitoink/283
Üzenet a hirdetőnek
Ingatlan hírek és információk ELSŐ KÉZBŐL
Iratkozzon fel hírlevelünkre még ma, és mi havonta egyszer elküldjük Önnek a legfontosabb piaci változásokat, ingatlan trendeket és vásárlási tanácsokat, tippeket!



















