Eladó Családi ház Budapest XVIII. kerület
Budapest XVIII. kerület, Almáskert, Alacskai út
234.500.000 Ft
(580.978 €)
Az ingatlan részletei
- Ajánlat: Eladó
- Tipus: Családi ház
- Ár: 234.500.000 Ft
- Alapterület: 290 m2
- Telek mérete: 750 m2
- Szobák: 10 szoba, 1 félszoba
- Épület szintjei: 3 szintes
- Erkély: van, 5 m2
- Kertkapcsolat: igen
- Kilátás: Utcai és udvari
- Állapot: Építés alatt
- Fűtés: Hőszivattyú
- Komfort: Luxus
- Parkolás: Teremgarázs
- Villany: van
- Víz: van
- Gáz: utcában
- Csatorna: van
Leírás
Azonosító:E-XVIII-10-480
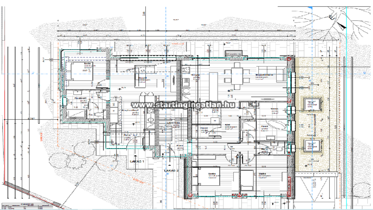
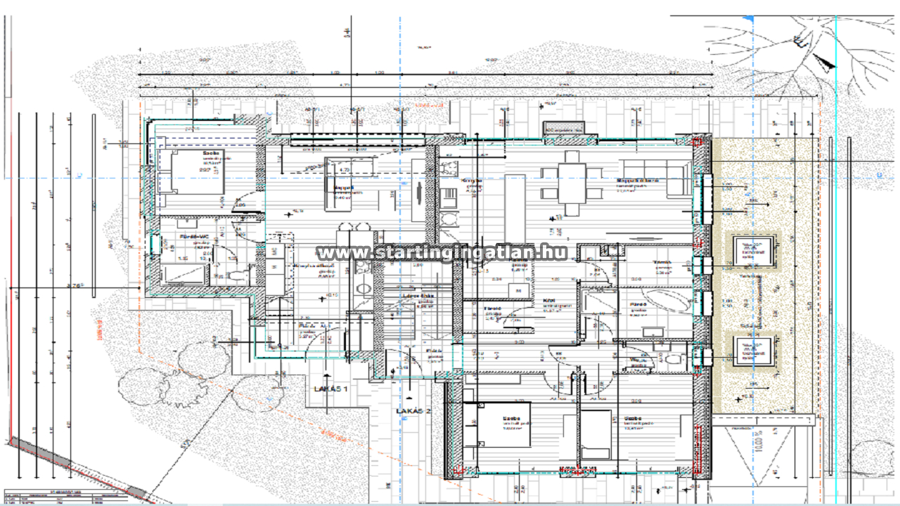
Eladó a XVIII. kerület kedvelt, kertvárosias Almáskerti részén, az Alacskai úton egy 750 m²-es telken álló, 290 m²-es szerkezetkész ikerház, amely három lakás kialakításával készült. A hatalmas üvegfelületek, a modern építészeti megoldások és a kivételes térkapcsolatok egyedülálló lehetőséget kínálnak a jövő tulajdonosának.
Az ingatlan 50%-os készültségi fokon áll, így a belső terek kialakítása még teljes mértékben az új tulajdonos igényeire szabható. Egy fontos előny azonban már biztos: a komplett tervezési és engedélyeztetési folyamat lezárult, így Önnek már nem kell időt, energiát és jelentős költségeket fordítania ezekre – a projekt azonnal és gördülékenyen folytatható.
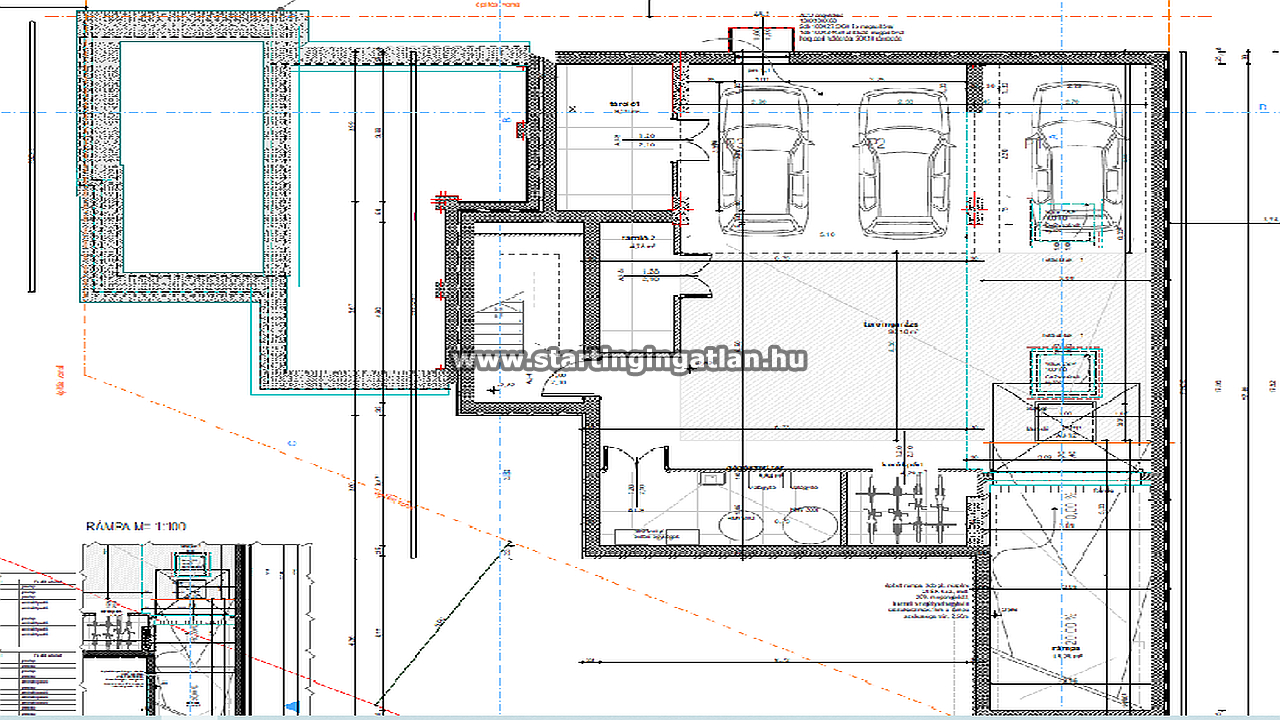
A ház összesen 10 és fél szobát, 4 fürdőszobát és egy 140 m²-es pincében elhelyezett, 3 autó befogadására alkalmas teremgarázst kínál, melyhez tárolók és a gépészet is tartozik. A földszinten egy külön bejáratú, belső kétszintes 87 m²-es lakás található. A másik két, összesen 203 m²-es lakóegység szintén külön bejárattal rendelkezik: egy 97,7 m²-es földszinti lakás, illetve egy 93,2 m²-es, felső szinti lakás, amelyet egy 12 m²-es galéria és egy impozáns üvegfal tesz igazán modernné és világossá.
A tervezett gépészeti megoldások a jövőbe mutatnak: hőszivattyú-előkészítés, valamint a lapostetőn rejtett napelem-előkészítés biztosítják a hosszú távú fenntarthatóságot és az energiahatékonyságot. A korszerű, letisztult építészeti forma és a hatalmas üvegfelületek garantálják a modern megjelenést és a természetes fényáradatot.
Elhelyezkedése kitűnő: csendes, nyugodt kertvárosi környezetben található, ugyanakkor egy folyamatosan fejlődő, keresett városrészben.
Azon kedves ügyfelek, akik általunk találják meg leendő otthonukat, az ügyvédünk által szerkesztett adásvételi szerződés díjából kedvezményben részesülnek.
Eladná ingatlanát? Bízza ránk!
Nálunk az értékesítés átlátható, egyszerű és biztonságos folyamat. A vételt és az eladást egy kézben tartjuk - így Önnek csak a sikeres üzletet kell ünnepelnie.
Hívjon minket még ma, és ingyenesen felmérjük ingatlana piaci értékét!
Miért válasszon minket?
- - Gyors értékesítés
- - Széles vevőkör
- - Tapasztalt értékesítők
- - Modern, kiemelt online megjelenés
- - Rugalmas jutalék
- - Teljes körű ügyintézés az első lépéstől a birtokbaadásig
Hívjon most, vagy Írjon üzenetet még ma, és indítsuk el az értékesítést! Hívjon most, vagy Írjon üzenetet még ma, és indítsuk el az értékesítést! Mobil: +36-20-852-5207
További ajánlataim: startingingatlan.hu/ertekesitoink/206
Üzenet a hirdetőnek
Ingatlan hírek és információk ELSŐ KÉZBŐL
Iratkozzon fel hírlevelünkre még ma, és mi havonta egyszer elküldjük Önnek a legfontosabb piaci változásokat, ingatlan trendeket és vásárlási tanácsokat, tippeket!























