Eladó Tégla lakás Budapest XIII. kerület
Budapest XIII. kerület, Angyalföld, Szent László út
114.900.000 Ft
(298.651 €)
Az ingatlan részletei
- Ajánlat: Eladó
- Tipus: Tégla lakás
- Ár: 114.900.000 Ft
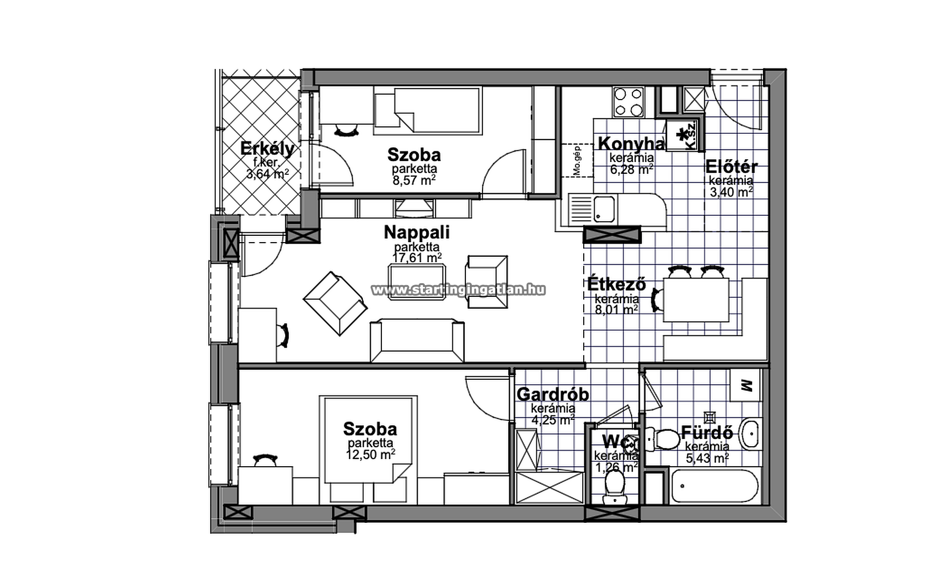
- Alapterület: 69 m2
- Emelet: 4. emelet
- Szobák: 3 szoba
- Épület szintjei: 5 szintes, lift van
- Erkély: van, 4 m2
- Kilátás: Udvari
- Állapot: Újszerű
- Fűtés: Házközponti fűtés egyedi méréssel
- Komfort: Összkomfort
- Parkolás: Teremgarázs beállóhely vásárolható
Leírás
Azonosító: E-XIII-12-518
XIII.ker. Angyalföldön, a közkedvelt Narancsliget Lakóparkban (Szent L.-Szegedi út sarkán) kínálunk megvételre egy Nyugati fekvésű, 4. emeleti, nettó 67 m²-es + 3,64 m² erkélyes, tágas, zöld udvarra néző téglalakást, amely a modern városi élet minden kényelmét nyújtja. A 2012-ben épült, rendezett társasházban található ingatlan fiatalos, igényes belsővel rendelkezik, amelyet a tágas, zöld udvarra néző kilátás tesz még hangulatosabbá. Az amerikai konyhás nappali és a 2 külön hálószoba ideális elrendezést biztosít egy pár, vagy akár egy kisebb család részére. A kádas fürdőszoba és a külön WC praktikus megoldásokat kínál a mindennapokra.
A lakás tulajdonosai gondosan vigyáztak az ingatlanra, így megkímélt, jelenleg is szép állapotnak örvend. A konyhabútor sütővel, főzőlappal, mikróval és mosogatógéppel a vételár részét képezi, akárcsak a nagyobb háló előtti térben, valamint a jelenlegi gyerekszobában található gardrób szekrény, míg a többi berendezés megbeszélés tárgya.
A házközponti fűtés egyedi méréssel történik, a közös költség 26.600 Ft, így a fenntartása kedvező. A nyári hónapokban a klíma biztosítja a kellemes hőérzetet, valamint minden ablak redőnnyel felszerelt.
Az ingatlanhoz opcionálisan megvásárolható 2 emelőszerkezetes teremgarázs-beálló, áruk 4,5M Ft/db, valamint egy 3nm-es tároló, ára: 3,5M Ft. A lakás tehermentes, rövid időn belül költözhető.
A Béke tér közelségének köszönhetően a környék infrastruktúrája kiváló: önkormányzat, rendelő, oktatási intézmények és számos bevásárlási lehetőség néhány perc sétával elérhető. A közlekedés szintén remek, hiszen a 20E, 30-as és 32-es buszok, valamint a közeli Rákosrendező vasútállomás révén a Nyugati pályaudvar és a belváros mindössze negyedórányira található. Ez a lakás ideális választás mindazoknak, akik modern környezetben, kiváló közlekedéssel keresnek új otthont Angyalföld egyik legkedveltebb részén.
Azon kedves ügyfelek, akik általunk találják meg leendő otthonukat, az ügyvédünk által szerkesztett adásvételi szerződés díjából kedvezményben részesülnek.
Eladná ingatlanát? Bízza ránk!
Nálunk az értékesítés átlátható, egyszerű és biztonságos folyamat. A vételt és az eladást egy kézben tartjuk - így Önnek csak a sikeres üzletet kell ünnepelnie.
Hívjon minket még ma, és ingyenesen felmérjük ingatlana piaci értékét!
Miért válasszon minket?
- - Gyors értékesítés
- - Széles vevőkör
- - Tapasztalt értékesítők
- - Modern, kiemelt online megjelenés
- - Rugalmas jutalék
- - Teljes körű ügyintézés az első lépéstől a birtokbaadásig
Hívjon most, vagy Írjon üzenetet még ma, és indítsuk el az értékesítést! Hívjon most, vagy Írjon üzenetet még ma, és indítsuk el az értékesítést! Mobil: +36-20-448-6460
További ajánlataim: startingingatlan.hu/ertekesitoink/102
Üzenet a hirdetőnek
Ingatlan hírek és információk ELSŐ KÉZBŐL
Iratkozzon fel hírlevelünkre még ma, és mi havonta egyszer elküldjük Önnek a legfontosabb piaci változásokat, ingatlan trendeket és vásárlási tanácsokat, tippeket!










